QuickPort - Say goodbye to wrestling power cords and water hoses through small holes: The new QuickPort service connection hatch makes hookups a snap--and helps keep your service area clean and tidy.
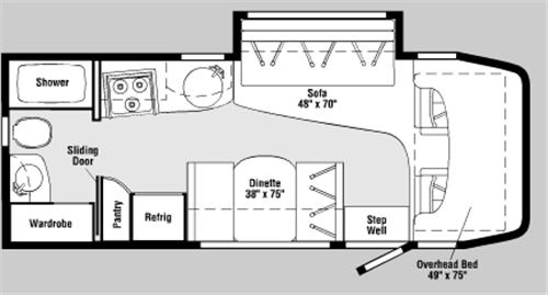
The SmarSpace design philosophy uses innovative, user friendly features to make the most of the available space. The BenchMark full complete dinette is just one example of this innovative thinking. It offers innerspring cushions that flip up to reveal large storage bins. The entire dinette also converts into a comfortable sleeping area.
SuperStructure constructions and precision-engineered Thermo-Panel sidewalls produce a coach of lasting beauty. Steel is used to create a strong durable cab structure. Windshields are secured with a steel sealant just like an automobile. All major steel components are e-coated to resist rust and corrosion.
TrueLevel holding tank monitoring system ensures accurate readings for fresh and waste water without the use of probes that can corrode or clog. Mirus detector cells produce a micro-electrical field that detects liquid levels from outside the tank.
CAB AREA & DRIVER CONVENIENCES Beverage Holders, Cab Seats (fabric), armrest, adj. lumbar support, headrest vertical adj., 6-way adj. pedestal, Cigarette Lighter/12-Volt DC Powerpoint, Cruise Control, Curtain cab divider, Document Clip, Floor Mats carpet fitted, Glove Compartment, Hood Release, Light dome, Monitor System rear view, cable ready, Power Door Locks w/remote control, driver/passenger/main entry, Power Cab Windows, Sunvisors, Temperature outside gauge, Trim Panels driver & passenger doors, Windshield Wipers intermittent S S Cab Seats (UltraLeather HP™), armrest, adj. lumbar support, headrest vertical adj, 6-way adj. pedestal O O Instrument Panel Appliqué Brushed Aluminum, Monitor System rearview w/single camera, 1-way audio O O
INTERIOR Bunk front overhead w/hinged 1-piece mattress, bunk ladder, privacy curtain, windows, storage trays, light, Ceiling fabric, Lights decorative overhead, dinette, Lights ceiling, incandescent w/wall switches, Light stepwell, Mini Blinds (galley & bath), Skylight w/bar handle, sliding screen, sliding pleated shade, Shades day/night pleated (lounge & dinette), 12-Volt DC Powerpoint, Windows tinted S S Cabinet front overhead storage, accent lights O
EXTERIOR Awning Rail w/rain gutter, Bumper front w/step grooves (2), Door entrance w/separate screen door, deadbolt lock, remote keyless entry, Entrance Door Steps double-electric w/doorjamb switch, Exterior Graphics Packages Storm Gray w/Vivid Blue/Bright Yellow or Storm Gray w/Tomato Red/Bright Yellow, Ladder hinged folding extension, Light porch w/interior switch, Mirrors electric remote w/defrost, folding extended arms, Mudflaps front & rear, Pullout Storage Drawer with sealed lid, Receptacle AC duplex, Sidewall Skin one-piece smooth fiberglass, Storage Compartments w/bottom trunk liner S S Awning patio, box style O O
SYSTEMS Automotive Heater/AC blend air system, AC (roof) 13,500 BTU, ceiling-ducted w/wall thermostat, Aux. Start Circuit, Batteries (coach) (2) Group 24 deep-cycle, Battery (coach) disconnect system, Battery Charge Control automatic dual, Drain water tank, 1," Electrical Distribution System AC breaker panel, DC automotive style fuses, 45-amp. converter/charger, Furnace 25,000 BTU, ducted in floor, Generator Prep Kit, Monitor Panel battery condition gauge, generator hourmeter gauge, generator start/stop switch, holding tank levels, LP tank level, water heater light(s), water heater switch, water pump switch, water tank level, Power Cord 30-amp., Service Compartment (drainage/water) city water hookup/tank diverter fill, drainage valves, 10' sewer hose, Service Center (electrical) cable input, power cord, portable satellite dish hookup, QuickPort service connection hatch, Tank LP, permanent mount w/gauge, TrueLevel holding tank monitoring system, Water Heater 6-gallon electronic ignition, LP gas, flush-mount door, Water System Winterization Package water heater bypass valve & siphon tube, Water Pump demand, Water Tank Fill gravity w/locking door S S AC Heat Pump, Drainage System heated, 12-Volt electric, Exterior Wash Station w/lighted pump switch, Generator 3,600-watt Onan MicroQuiet, LP, Water Heater 6-gallon ignition, 120 Vac/LP O O
SAFETY Airbags driver & passenger, Assist Bar interior, Bumpers front & rear, Detectors/Alarms LP leak, smoke, carbon monoxide, Fire Extinguisher 10 BC, Ground Fault Interrupter, Lamps daytime running, fog, Lights high-mount LED brake, Seat Belts cab, 3-point, adj. Seat Belts lap (in selected areas), Window escape S S Child-Seat Tether Anchor S
Please see us for a complete list of features and options!
Favorite RVs
Save your favorite RVs as you browse. Begin with this one!
What Other Customers Are Saying
Excellent Customer Service
My wife and I recently upgraded from a Pop-Up camper to a travel trailer and are extremely pleased with the service we received from our saleslady Grace, management and service technician. We were treated quite fairly in regards to our trade-ins and financing along with some other incentives. We will
Julio
Excellent Customer Service
Alex's Lemonade Stand Fundraiser at Lee's Auto & RV Ranch In an effort to help the battle against childhood cancer we at Lee's as a family owned and operated business pride ourselves in the value of family and loved ones. Each year thousands of children are diagnosed with Some form of cancer. As a family
Marci
Excellent Customer Service
Bought a 2016 zr9000 snow pro snowmobile from lees a few weeks ago. Looked around at these machines and knew I wanted an arctic cat and found this one at a great leftover price. Good financing. Cody and Nick were extremely helpful and knowledgeable about the machine. Ended up going back a few days later
Lee's Auto and RV Ranch is not responsible for any misprints, typos, or errors found in our website pages. Any price listed excludes sales tax, registration tags, and delivery fees. Manufacturer pictures, specifications, and features may be used in place of actual units on our lot. Please contact us @860-875-1444 for availability as our inventory changes rapidly. All calculated payments are an estimate only and do not constitute a commitment that financing or a specific interest rate or term is available.
Manufacturer and/or stock photographs may be used and may not be representative of the particular unit being viewed. Where an image has a stock image indicator, please confirm specific unit details with your dealer representative.